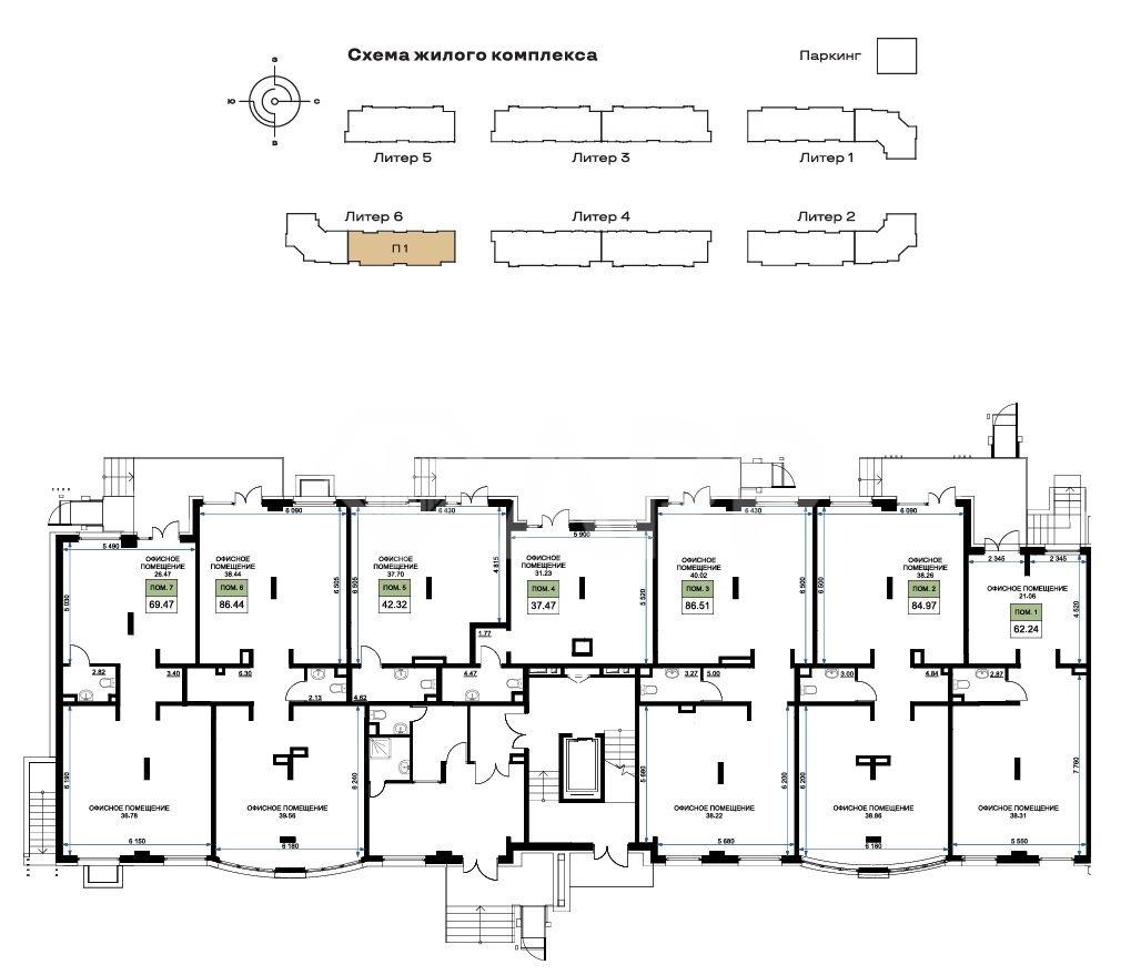
Продаю помещение 1 этаж 1 линия, 37.4 м² до 73.3 м²

Межсанаторный проезд, д. 20, корп. 1

8 844 000 руб.

?

$ 1 086

€ 979

236 471 руб./м²


37.4 м²

1/9 этажей

Код объекта

111577

Предложение доступно для субагентов, авторизуйтесь

Продаю помещение 1 этаж 1 линия, 37.4 м² до 73.3 м²

Код объекта: 111577.
Тип объекта: Помещение свободного назначения.
Площадь: 37.4 м².
Этаж / Этажность: 1 / 9.

Описание и характеристики

Продаю коммерческое помещение на 1 этаже 1 линия  от 37.4 до 73.3 м² ЖК Песчаный
От Собственника. Без комиссии
- Расположение: ЖК "Песчаный"
- Преимущества: получен Акт ввода, первый этаж, первая линия, витражное остекление
- Характеристика: отделка черновая, коммуникации центральные
- Подойдет под: магазин (розница, одежда, сувениры), салон красоты или барбершоп, офис или шоу-рум, кафе или пекарня, студия (йога, массаж, творческая), мастерская, медицину, банки, алкомаркет, винотека, аптека, услуги, цветы
От Собственника. Без комиссии

По всем вопросам можете обращаться к вашему персональному менеджеру:
Леонид - консультант по коммерческой недвижимости.
Большая база коммерческой недвижимости.
Подписывайтесь на наш профиль, чтобы узнавать о новых локациях первыми!

Перейти в карточку объекта в CRM: 111577.

АРР Новороссийск

+7 988 770-91-00

или оставьте ваш номер, и я перезвоню в течение 30 минут

Отправляя заявку вы соглашаетесь на обработку персональных данных

8 844 000 руб.

?

$ 116 225

€ 99 704

236 471 руб./м²


37.4 м²

1/9 этажей

Код объекта

111577

Предложение доступно для субагентов, авторизуйтесь

АРР Новороссийск

+7 988 770-91-00

или оставьте ваш номер, и я перезвоню в течение 30 минут

Отправляя заявку вы соглашаетесь на обработку персональных данных

Похожие объявления

Посмотреть все похожие объявления
1/25
Код объекта: 307425.
Тип объекта: Помещение свободного назначения.
Площадь: 50.4 м².
Этаж / Этажность: -1 / 17.
1/16
Код объекта: 305502.
Тип объекта: Помещение свободного назначения.
Площадь: 51.9 м².
Этаж / Этажность: -1 / 4.
1/22
Код объекта: 307361.
Тип объекта: Помещение свободного назначения.
Площадь: 29.4 м².
Этаж / Этажность: 1 / 17.
1/18
Код объекта: 371710.
Тип объекта: Помещение свободного назначения.
Площадь: 79.4 м².
Этаж / Этажность: 1 / 4.
1/33
Код объекта: 307448.
Тип объекта: Помещение свободного назначения.
Площадь: 39.7 м².
Этаж / Этажность: 17 / 17.
1/10
Код объекта: 391503.
Тип объекта: Помещение свободного назначения.
Площадь: 38.4 м².
Этаж / Этажность: 1 / 12.
1/22
Код объекта: 307361.
Тип объекта: Помещение свободного назначения.
Площадь: 29.4 м².
Этаж / Этажность: 1 / 17.
1/15
Код объекта: 234599.
Тип объекта: Апартаменты.
Площадь: 174.3 м².
Этаж / Этажность: 13 / 13.
1/6
Код объекта: 209686.
Тип объекта: Земельный участок.
Площадь: 289500 .
1/4
Код объекта: 209685.
Тип объекта: Земельный участок.
Площадь: 208800 .
1/8
Код объекта: 250000.
Тип объекта: Земельный участок.
Площадь: 56500 .
1/6
Код объекта: 234738.
Тип объекта: Апартаменты.
Площадь: 40.4 м².
Этаж / Этажность: 5 / 9.

Не хочу искать, перезвоните мне!

Оставьте номер телефона, наш специалист свяжется с вами и поможет с подбором недвижимости!